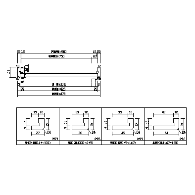
「ずっと ここちいいね」を実現する企業 DAIKEN 建材製品情報 CAD データ検索 dwg C_B_PU-TO-B-N-W875.dwg dxf C_B_PU-TO-B-N-W875.dxf CAD ハピアパブリック室内ドア トイレ00 見切枠B 幅875 データ分類_第1分類 CAD データ分類_第2分類 室内ドア データ分類_第3分類 hapia public (施設向け) データ分類_第4分類 トイレドア データ分類_第5分類 横断面図 データ分類_第6分類 トイレ データ分類_第7分類 00 データ分類_第8分類 見切枠B ファイル種類 製品図 キャプション ハピアパブリック室内ドア トイレ00 見切枠B 幅875