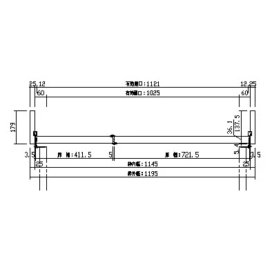
「ずっと ここちいいね」を実現する企業 DAIKEN 建材製品情報 CAD データ検索 dwg C_D_2023-OM-OY-K179-W1195.dwg dxf C_D_2023-OM-OY-K179-W1195.dxf CAD 親子 固定枠179 1195幅 データ分類_第1分類 CAD データ分類_第2分類 室内ドア データ分類_第3分類 おもいやりドア(施設向け) データ分類_第4分類 開き戸(片開きドア/親子ドア/親親ドア) データ分類_第5分類 断面図(2023年9月~) データ分類_第6分類 親子ドア ファイル種類 製品図 キャプション 親子 固定枠179 1195幅