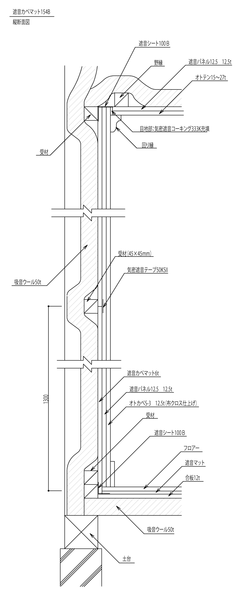
「ずっと ここちいいね」を実現する企業 DAIKEN 建材製品情報 CAD データ検索 dwg CD_B_RGB_D7_1.dwg dxf CD_B_RGB_D7_1.dxf CAD 住宅向け/壁下地材 遮音カベマット 154B 断面図1(縦断面図) データ分類_第1分類 CAD データ分類_第2分類 防音建材・音響製品 データ分類_第3分類 壁・天井防音用下地材 データ分類_第4分類 遮音カベマット ファイル種類 断面図 キャプション 住宅向け/壁下地材 遮音カベマット 154B 断面図1(縦断面図)