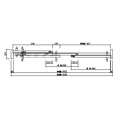
「ずっと ここちいいね」を実現する企業 DAIKEN 建材製品情報 CAD データ検索 dwg C_D_OM-C3I-K154-W1645-1.dwg dxf C_D_OM-C3I-K154-W1645-1.dxf CAD 横断面図(2000高・1900高) データ分類_第1分類 CAD データ分類_第2分類 室内ドア データ分類_第3分類 おもいやりドア(施設向け) データ分類_第4分類 3枚連動吊戸 データ分類_第5分類 断面図 ファイル種類 製品図 キャプション 横断面図(2000高・1900高)