製品図
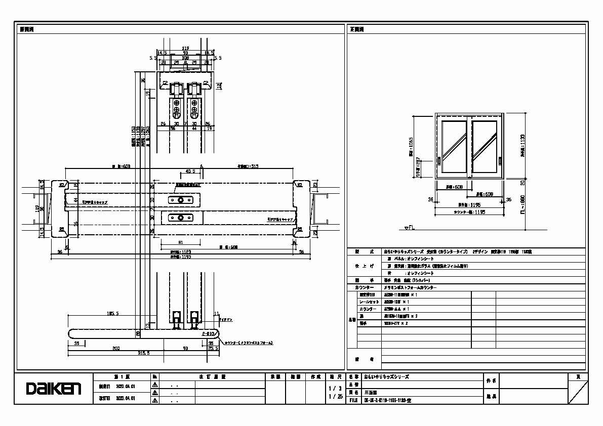
1195幅 1133高 引手 角座 空錠 メラミンポストフォームカウンター
| データ分類_第1分類 | 図面 |
|---|---|
| データ分類_第2分類 | 室内ドア |
| データ分類_第3分類 | おもいやりキッズドア(施設向け) |
| データ分類_第4分類 | 受付窓 |
| データ分類_第5分類 | 受付窓(カウンタータイプ) |
| データ分類_第6分類 | Z |
| データ分類_第7分類 | 固定枠119 |
| ファイル種類 | 製品図 |
| 見出し | 製品図 |
| キャプション | 1195幅 1133高 引手 角座 空錠 メラミンポストフォームカウンター |
| 改定日 | 2023/06/21 |
| 備考 |






