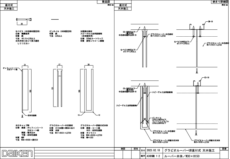
「ずっと ここちいいね」を実現する企業 DAIKEN 建材製品情報 CAD データ検索 dwg CD_B_MF01-01■■-0315.dwg dxf CD_B_MF01-01■■-0315.dxf CAD グラビオルーバーUB 直付式(天井施工)(幅×高さ:30㎜×150㎜) データ分類_第1分類 CAD データ分類_第2分類 内装ルーバー材 データ分類_第3分類 不燃造作材 データ分類_第4分類 グラビオルーバーUB データ分類_第5分類 直付式(天井施工) ファイル種類 姿図 キャプション グラビオルーバーUB 直付式(天井施工)(幅×高さ:30㎜×150㎜)