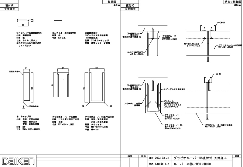
「ずっと ここちいいね」を実現する企業 DAIKEN 建材製品情報 CAD データ検索 dwg CD_B_MFUS-011■-0510.dwg dxf CD_B_MFUS-011■-0510.dxf CAD グラビオルーバーUS 直付式(天井施工)(幅×高さ:50㎜×100㎜) データ分類_第1分類 CAD データ分類_第2分類 内装ルーバー材 データ分類_第3分類 不燃造作材 データ分類_第4分類 グラビオルーバーUS データ分類_第5分類 直付式(天井施工) ファイル種類 姿図 キャプション グラビオルーバーUS 直付式(天井施工)(幅×高さ:50㎜×100㎜)