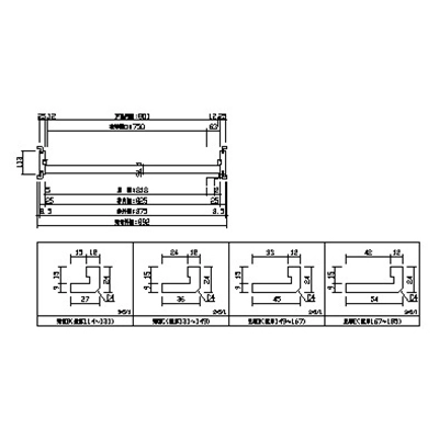
「ずっと ここちいいね」を実現する企業 DAIKEN 建材製品情報 CAD データ検索 dwg D_D_HA-KA-B-N-W875-1.dwg dxf D_D_HA-KA-B-N-W875-1.dxf CAD 横断面図 875幅 Nスタンダード丁番 データ分類_第1分類 CAD データ分類_第2分類 室内ドア データ分類_第3分類 hapia リビングドア 開き戸 データ分類_第4分類 片開きドア データ分類_第5分類 断面図 データ分類_第6分類 見切枠B ファイル種類 製品図 キャプション 横断面図 875幅 Nスタンダード丁番