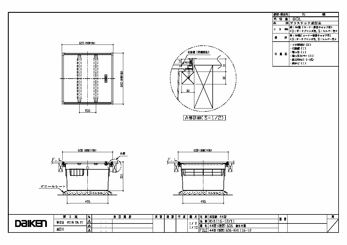
「ずっと ここちいいね」を実現する企業 DAIKEN 建材製品情報 図面 データ検索 pdf Z_D_2022-Yukasyuno-44A-606-KH1116-12-1.pdf webp Z_D_2022-Yukasyuno-44A-606-KH1116-12-1.webp 製品図 44型(浅型)606 KH1116-12 三面図 データ分類_第1分類 図面 データ分類_第2分類 収納 データ分類_第3分類 床収納 データ分類_第4分類 44型[深型(1階用)][浅型(1・2階兼用)] ファイル種類 製品図 見出し 製品図 キャプション 44型(浅型)606 KH1116-12 三面図 改定日 2022/06/21 備考