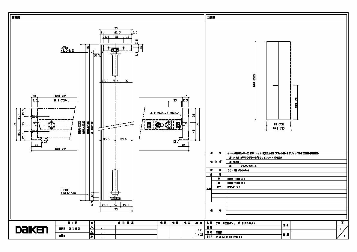
「ずっと ここちいいね」を実現する企業 DAIKEN 建材製品情報 図面 データ検索 pdf Z_D_2022-RS-OR-K3-75-FTW-0735-8-R-1.pdf webp Z_D_2022-RS-OR-K3-75-FTW-0735-8-R-1.webp 製品図 735高 三面図 データ分類_第1分類 図面 データ分類_第2分類 特定業者様向け製品 データ分類_第3分類 RSシリーズ クローク収納 データ分類_第4分類 折戸ユニット フラット縦木目・横木目タイプ データ分類_第5分類 枠見込75 データ分類_第6分類 8尺高 ファイル種類 製品図 見出し 製品図 キャプション 735高 三面図 改定日 2022/06/21 備考