pdf Z_D_2022-RS-HHH-00-K113-1645-2045-KF-1.pdf
webp Z_D_2022-RS-HHH-00-K113-1645-2045-KF-1.webp

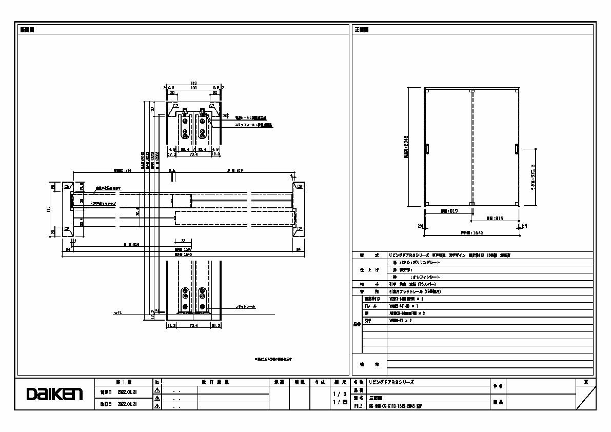
製品図

1645幅 2045高 引手 角座 空錠 フラットレール(1645幅用) 三面図

データ分類_第1分類 図面
データ分類_第2分類 特定業者様向け製品
データ分類_第3分類 RSシリーズ 室内ドア
データ分類_第4分類 部材
データ分類_第5分類 引戸引違
データ分類_第6分類 2045高
データ分類_第7分類 00
ファイル種類 製品図
見出し 製品図
キャプション 1645幅 2045高 引手 角座 空錠 フラットレール(1645幅用) 三面図
改定日 2022/06/21
備考