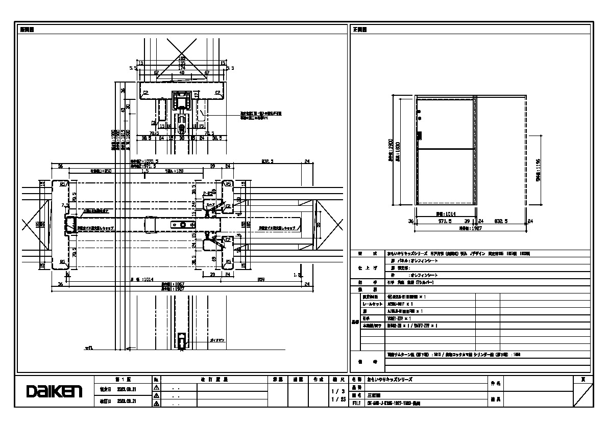
製品図
1927幅 1900高 引手 角座 空錠 美和カマ錠 シリンダー錠+両側サムターン錠
| データ分類_第1分類 | 図面 |
|---|---|
| データ分類_第2分類 | 室内ドア |
| データ分類_第3分類 | おもいやりキッズドア(施設向け) |
| データ分類_第4分類 | 吊戸 |
| データ分類_第5分類 | 吊戸片引(自閉式)引込 |
| データ分類_第6分類 | J |
| データ分類_第7分類 | 固定枠185 |
| ファイル種類 | 製品図 |
| 見出し | 製品図 |
| キャプション | 1927幅 1900高 引手 角座 空錠 美和カマ錠 シリンダー錠+両側サムターン錠 |
| 改定日 | 2022/06/21 |
| 備考 |






