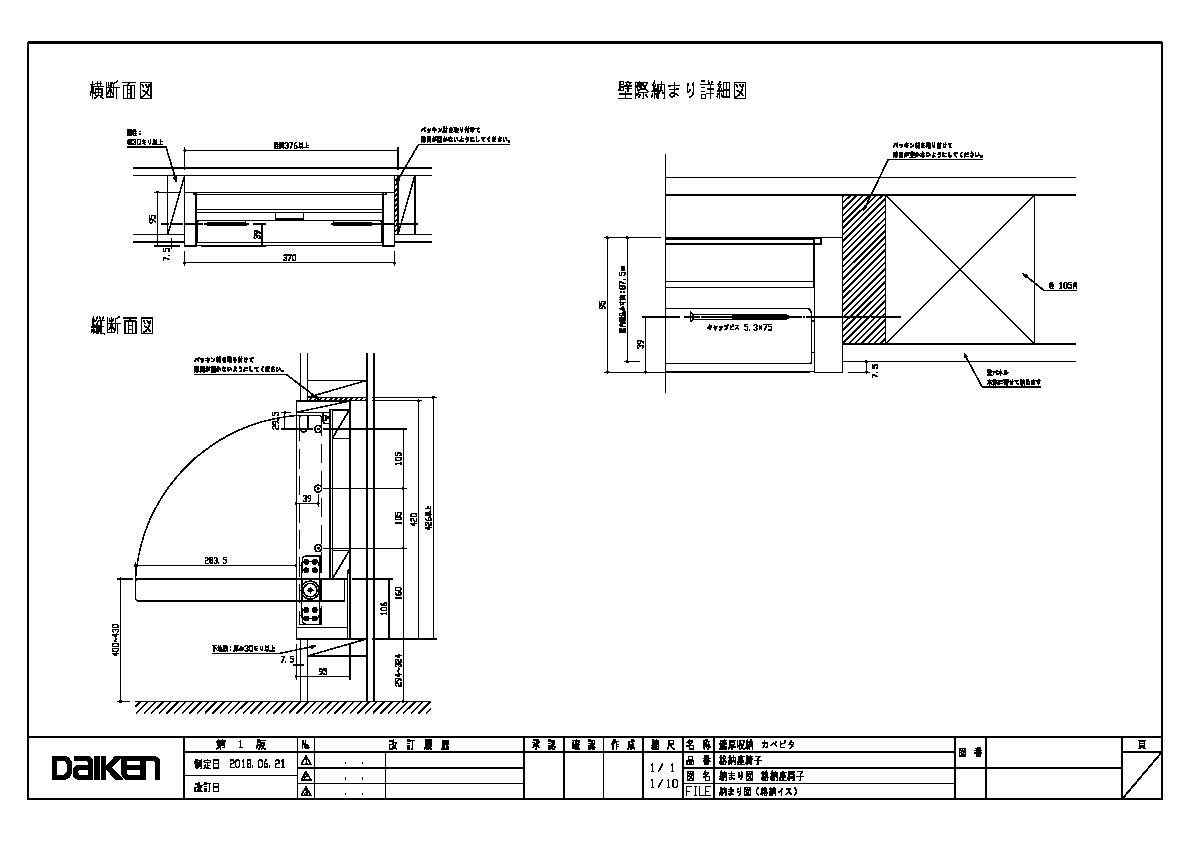
「ずっと ここちいいね」を実現する企業 DAIKEN 建材製品情報 図面 データ検索 pdf Z_D_2022-Kabepita-Osamari-2-1.pdf webp Z_D_2022-Kabepita-Osamari-2-1.webp 製品図 納まり図(格納イス) データ分類_第1分類 図面 データ分類_第2分類 収納 データ分類_第3分類 カベピタ 壁厚収納 データ分類_第4分類 格納イス ファイル種類 製品図 見出し 製品図 キャプション 納まり図(格納イス) 改定日 2022/06/21 備考