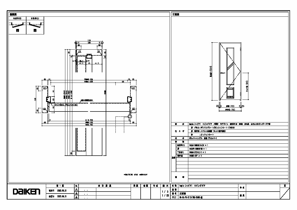
「ずっと ここちいいね」を実現する企業 DAIKEN 建材製品情報 図面 データ検索 pdf Z_D_2022-HA-PE-P8-K113-780-2045-K-1.pdf webp Z_D_2022-HA-PE-P8-K113-780-2045-K-1.webp 製品図 780幅 2045高 85ハンドル 空錠 三面図 データ分類_第1分類 図面 データ分類_第2分類 室内ドア データ分類_第3分類 hapia 機能ドア データ分類_第4分類 ペットドア データ分類_第5分類 P8 データ分類_第6分類 固定枠113 ファイル種類 製品図 見出し 製品図 キャプション 780幅 2045高 85ハンドル 空錠 三面図 改定日 2022/06/21 備考