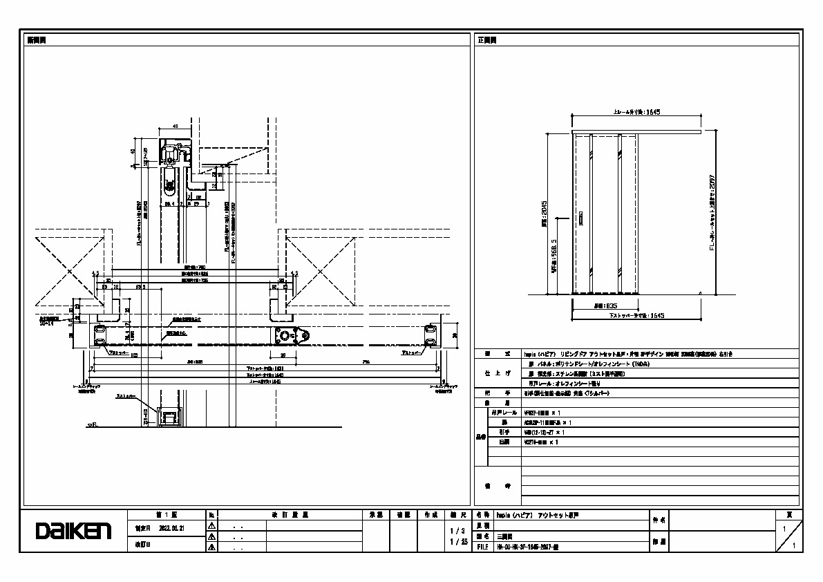
「ずっと ここちいいね」を実現する企業 DAIKEN 建材製品情報 図面 データ検索 pdf Z_D_2022-HA-OU-HK-3P-1645-2097-M-1.pdf webp Z_D_2022-HA-OU-HK-3P-1645-2097-M-1.webp 製品図 1645幅 2000高 錠付 三面図 データ分類_第1分類 図面 データ分類_第2分類 室内ドア データ分類_第3分類 hapia アウトセットドア データ分類_第4分類 アウトセット吊戸・片引 データ分類_第5分類 錠付 データ分類_第6分類 3P ファイル種類 製品図 見出し 製品図 キャプション 1645幅 2000高 錠付 三面図 改定日 2022/06/21 備考