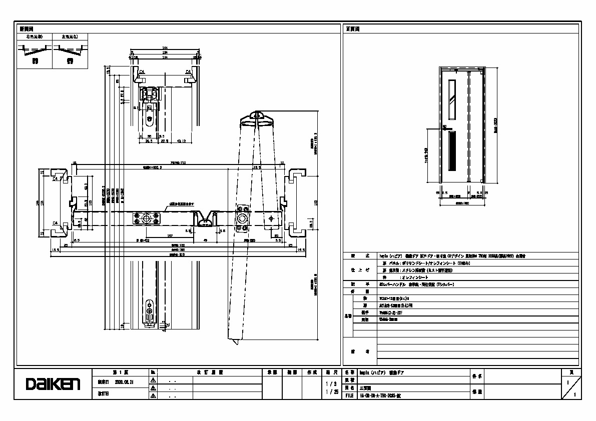
「ずっと ここちいいね」を実現する企業 DAIKEN 建材製品情報 図面 データ検索 pdf Z_D_2022-HA-OR-C8-A-780-2033-M-1.pdf webp Z_D_2022-HA-OR-C8-A-780-2033-M-1.webp 製品図 780幅 2033高 錠付 三面図 データ分類_第1分類 図面 データ分類_第2分類 室内ドア データ分類_第3分類 hapia 機能ドア データ分類_第4分類 折戸ドア・錠付タイプ データ分類_第5分類 02) 錠付 データ分類_第6分類 C8 データ分類_第7分類 見切枠A ファイル種類 製品図 見出し 製品図 キャプション 780幅 2033高 錠付 三面図 改定日 2022/06/21 備考