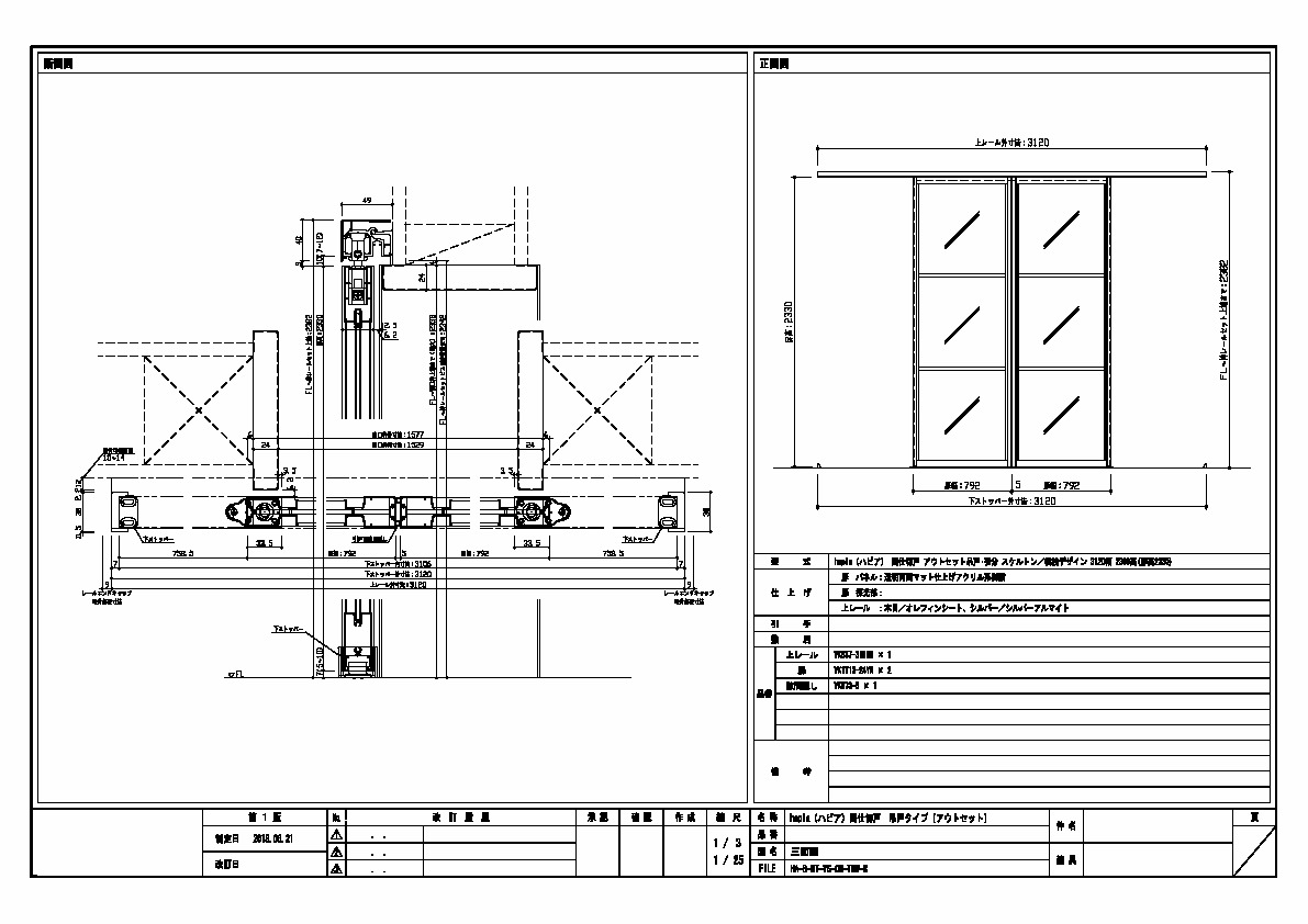
「ずっと ここちいいね」を実現する企業 DAIKEN 建材製品情報 図面 データ検索 pdf Z_D_2022-HA-MT-YS-OU-THW-8-1.pdf webp Z_D_2022-HA-MT-YS-OU-THW-8-1.webp 製品図 横桟 引分 8尺高 三面図 データ分類_第1分類 図面 データ分類_第2分類 室内ドア データ分類_第3分類 hapia 間仕切戸 データ分類_第4分類 吊戸タイプ[アウトセット]引分(スケルトン) データ分類_第5分類 02) 横桟 ファイル種類 製品図 見出し 製品図 キャプション 横桟 引分 8尺高 三面図 改定日 2022/06/21 備考