pdf Z_D_2022-HA-HHK-00-K169-1315-2045-HFA-1.pdf
webp Z_D_2022-HA-HHK-00-K169-1315-2045-HFA-1.webp

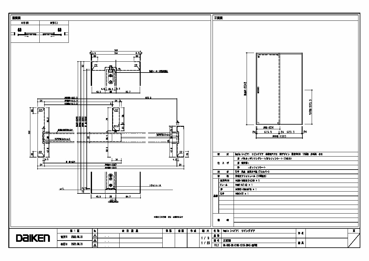
製品図

1315幅 2045高 引手 角座 表示錠 フラットレール(1315幅用) 三面図

データ分類_第1分類 図面
データ分類_第2分類 室内ドア
データ分類_第3分類 hapia リビングドア 引戸
データ分類_第4分類 引戸・片引
データ分類_第5分類 巾狭片引・ラクラクローズ
データ分類_第6分類 2045高
データ分類_第7分類 00
ファイル種類 製品図
見出し 製品図
キャプション 1315幅 2045高 引手 角座 表示錠 フラットレール(1315幅用) 三面図
改定日 2022/06/21
備考