CAD
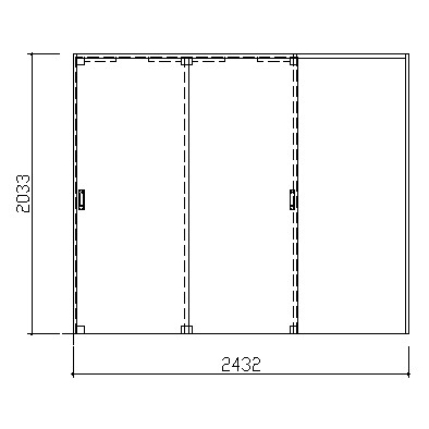
2432幅 2033高 引手 角座 空錠 フラットレール(2432幅用) 正面図
| データ分類_第1分類 | CAD |
|---|---|
| データ分類_第2分類 | 室内ドア |
| データ分類_第3分類 | hapia リビングドア 引戸 |
| データ分類_第4分類 | 引戸・2枚片引 |
| データ分類_第5分類 | 正面図 |
| データ分類_第6分類 | 02) 2033高 |
| データ分類_第7分類 | 00 |
| データ分類_第8分類 | ラクラクローズ |
| データ分類_第9分類 | 固定枠154 |
| ファイル種類 | 製品図 |
| キャプション | 2432幅 2033高 引手 角座 空錠 フラットレール(2432幅用) 正面図 |






